Beschreibung
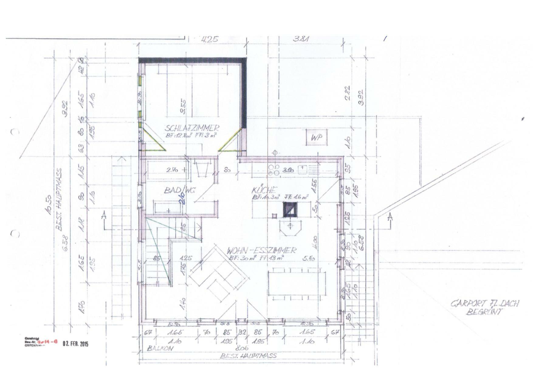
Das freistehende Einfamilienhaus wurde im Jahr 2015 neu errichtet. Nur noch die Grundmauern erinnern an den ursprünglichen Bau von 1977. Der Neubau wurde mit viel Liebe zum Detail realisiert. Nur natürliche Materialien wurden verwendet. So sind die Wände mit Schafwolle und das Dach mit Holzfaserplatten gedämmt. Die Fussbodenheizung sowie die Warmwasseraufbereitung wird durch eine Wärmepumpe mit unterstützender, thermischer Solaranlage betrieben. Ergänzend kann der Wohnbereich durch einen Cheminéeofen beheizt werden. Im Wohn-, Essbereich sowie in den Schlafräumen ist ein schwimmender Eichenparkett verlegt. Die Wände sind in Lehmputz oder Arventäfer ausgeführt. Auf der Ost- wie auch auf der Westseite laden gemütliche Terrassen zum Verweilen ein. Blick auf den türkisblauen Brienzersee bietet der grosse Südbalkon. Die Aussicht ist unverbaubar. Das gelungene Umgebungskonzept unterstreicht der Seerosenteich sowie sehr schön gestaltete Natursteinmauern.
Überzeugen Sie sich anlässlich einer Besichtigung von diesem einmaligen Objekt. Das Objekt darf nur als Erstwohnung veräussert werden.
Überzeugen Sie sich anlässlich einer Besichtigung von diesem einmaligen Objekt. Das Objekt darf nur als Erstwohnung veräussert werden.
Lage
Das Dorf ist durch ÖV bestens erschlossen. Im stündlichen Takt verkehren Bus- oder Bahnverbindungen nach Interlaken Ost, mit Anschlüssen an das SBB Netz und die Jungfrauregion oder nach Brienz/Meiringen, mit Anschluss an die Brüniglinie.
Gemeinde
Niederried ist ein beschauliches Dorf am türkisblauen Brienzersee inmitten der Tourismusregion Interlaken. Das Dorf zählt rund 380 Einwohner und erstreckt sich vom See bis auf den Suggiturm auf 2085m ü.M. am Hardergrat. Verschiedene öffentliche Bereiche, wie der einmalige Bade- und Grillplatz direkt am schönen Brienzersee laden zum Verweilen ein.
Konstruktion
Sämtliche Installationen wie Heizung, Sanitär, Badezimmer und Küche entsprechen einem gehobenen Standard. Die Küchenausstattung lässt keine Wünsche offen und überzeugt durch Küchengeräte der Marke Bauknecht. Das ganze Haus ist bereit für den sofortigen Einzug. Die Parkettböden sind frisch geölt und die Wände wurden, wo nötig, neu gestrichen.
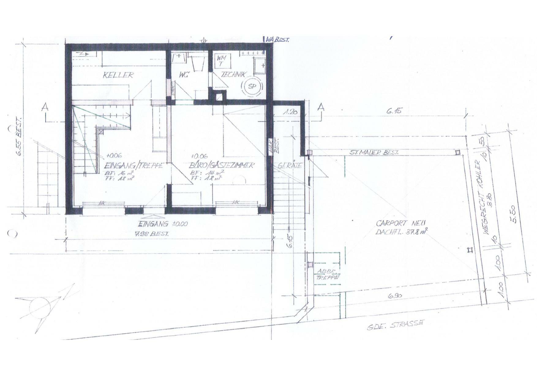
Für das Abstellen von Gartengeräten oder auch Velos ist unter der Treppe ein geschlossener Abstellraum eingerichtet. Der Carport bietet problemlos Platz für zwei Fahrzeuge. Zu erwähnen gilt, dass das benachbarte Ferienhaus ein Parkplatzrecht für ein Fahrzeug hat, jedoch das Haus nur sehr selten, durch die Eigentümerschaft, genutzt wird.
Für das Abstellen von Gartengeräten oder auch Velos ist unter der Treppe ein geschlossener Abstellraum eingerichtet. Der Carport bietet problemlos Platz für zwei Fahrzeuge. Zu erwähnen gilt, dass das benachbarte Ferienhaus ein Parkplatzrecht für ein Fahrzeug hat, jedoch das Haus nur sehr selten, durch die Eigentümerschaft, genutzt wird.
Eigenschaften
Umgebung
- Dorf
- Ländlich
- Berge
- See
- Einkaufsmöglichkeiten
- Restaurant(s)
- Bahnhof
- Bushaltestelle
- Kinderfreundlich
- Spielplatz
- Wanderwege
- Radweg
Aussenbereich
- Balkon(e)
- Terrasse(n)
- Garten
- Ruhige Lage
- Begrünung
- Teich
- Abstellraum
- Gedeckter Parkplatz
- Gartencheminée
- An einem Hang gebaut
Innenbereich
- Offene Küche
- Separate WC's
- Keller
- Schwedenofen
- Doppelverglasung
- Hell
- Lichtdurchflutet
- Sichtbalken
- Mit Charme
Ausstattung
- Moderne Küche
- Glaskeramik
- Backofen
- Steamer
- Kühlschrank
- Geschirrspüler
- Waschmaschine
- Badewanne
- Telefon
- Kabelfernsehen
- Internetanschluss
Boden
- Fliesen
- Parkett
Zustand
- Neuwertig
Besonnung
- Optimal
- Ganzer Tag besonnt
Aussicht
- Schöne Aussicht
- Unverbaubar
- Panoramasicht
- See
- Garten
- Berge
Stil
- Modern
- Rustikal
- Charakteristisches Haus
Distanzen
Bahnhof
180 m
6'
6'
2'
Öffentliche Verkehrsmittel
125 m
5'
5'
2'
Kindergarten
3.56 km
47'
32'
6'
Primarschule
3.56 km
47'
32'
6'
Sekundarschule
5.69 km
1h24
42'
10'
Geschäfte
132 m
5'
5'
2'
Restaurants
362 m
6'
6'
2'
























