Beschreibung
Verwirklichen Sie Ihren Traum vom Eigenheim. Die Liegenschaft "am Chänel" wurde Mitte der 90er Jahre erbaut und beherbergt 2 Geschäftslokale im Erdgeschoss sowie 5 darüberliegende Wohneinheiten.
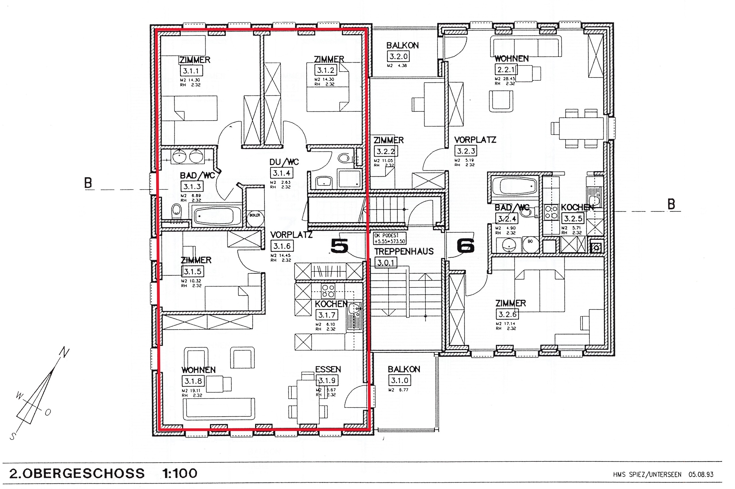
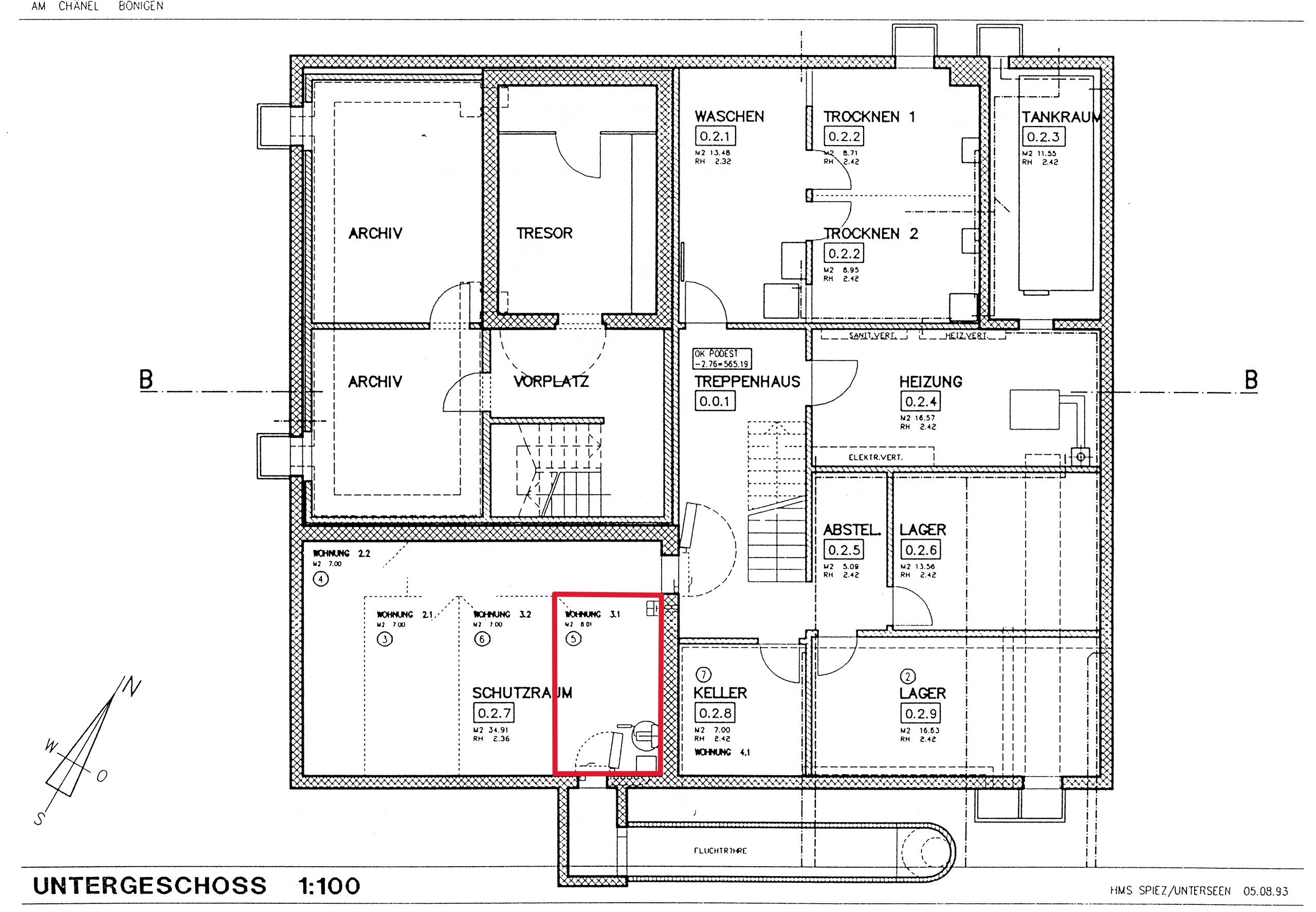
Die zum Verkauf stehende Wohnung befindet sich im 2. Obergeschoss und überzeugt durch einen guten Grundriss. Der Wohn- Essbereich ist gegen Süden ausgerichtet und hat direkten Zugang zum gemütlichen Balkon. Als Staufläche sind die grosszügigen Einbauschränke sowie das Reduit praktisch. Die Nasszellen sind aufgeteilt in Dusche/WC sowie Bad/WC. Im Untergeschoss bietet ein Keller genügend Stauraum. Die Gemeinschaftswaschküche sowie der Trocknungsraum kann mitbenutzt werden. Ein Aussenparkplatz gehört zur Wohnung dazu und ist im Objektpreis enthalten. Die Liegenschaft präsentiert sich generell in einem guten Zustand.
Die zum Verkauf stehende Wohnung befindet sich im 2. Obergeschoss und überzeugt durch einen guten Grundriss. Der Wohn- Essbereich ist gegen Süden ausgerichtet und hat direkten Zugang zum gemütlichen Balkon. Als Staufläche sind die grosszügigen Einbauschränke sowie das Reduit praktisch. Die Nasszellen sind aufgeteilt in Dusche/WC sowie Bad/WC. Im Untergeschoss bietet ein Keller genügend Stauraum. Die Gemeinschaftswaschküche sowie der Trocknungsraum kann mitbenutzt werden. Ein Aussenparkplatz gehört zur Wohnung dazu und ist im Objektpreis enthalten. Die Liegenschaft präsentiert sich generell in einem guten Zustand.
Lage
Die Liegenschaft ist gut erschlossen über den Autobahnanschluss A8 sowie die Hauptstrasse nach Bönigen. Das Objekt befindet sich in unmittelbarer Nähe der Schulanlage, von Geschäften, Bank und Post. Zu Fuss ist die schöne Seepromenade in wenigen Minuten erreichbar.
Gemeinde
Bönigen ist ein schönes, schmuckes und gemütliches Dorf am unteren Brienzerseeufer mit klassischem Dorfcharakter. Die nötige Infrastruktur für die täglichen Besorgungen ist im Dorfzentrum vorhanden. Es ist durch öffentliche Verkehrsmittel sehr gut erschlossen und liegt nur wenige Fahrminuten von Interlaken. Die wunderschöne und durchgehende Uferpromenade bietet die nötige Erholung.
Konstruktion
BAUART
Die Liegenschaft wurde 1995 in Massivbau errichtet und ist voll unterkellert. Ab Erdgeschoss 2-Schalenmauerwerk, Backstein 12.5 cm mit Eternitverkleidung ab Obergeschoss. Wärmedämmung 100mm. Innenwände Backstein 12.5/10cm stark. Wohnungstrennwände 2x Backstein 12.5cm mit 30mm Schall-Wärmedämmung. Satteldach mit Ziegeleindeckung. Spenglerarbeiten in Kupfer. Beschattung mittels Rafflamellenstoren. Holzfenster mit Isolierverglasung.
ELEKTROANLAGEN
Elektroinstallation in allen Räumen bestehend aus Schalter, Steckdosen und Lampenstellen in gutem Standard.
HEIZUNGSANLAGE
Wärmeerzeugung mit zentraler Ölheizung im Keller. Wärmeverteilung in allen Räumen mit Radiatoren.
SANITÄRANLAGEN
Sanitäre Apparate, Armaturen und Garnituren in der Nasszelle in gutem Standard. Private Waschmaschine im Hauptbad.
KÜCHENEINRICHTUNGEN
Fronten der Unter- und Oberbauten in Spanplatten mit Kunstharz belegt. Abdeckung in Granit. Küchengeräte bestehend aus Glaskeramikkochfeld mit Dampfabzug, Geschirrspüler, Kühlschrank, Backofen in gutem Standard.
Die Liegenschaft wurde 1995 in Massivbau errichtet und ist voll unterkellert. Ab Erdgeschoss 2-Schalenmauerwerk, Backstein 12.5 cm mit Eternitverkleidung ab Obergeschoss. Wärmedämmung 100mm. Innenwände Backstein 12.5/10cm stark. Wohnungstrennwände 2x Backstein 12.5cm mit 30mm Schall-Wärmedämmung. Satteldach mit Ziegeleindeckung. Spenglerarbeiten in Kupfer. Beschattung mittels Rafflamellenstoren. Holzfenster mit Isolierverglasung.
ELEKTROANLAGEN
Elektroinstallation in allen Räumen bestehend aus Schalter, Steckdosen und Lampenstellen in gutem Standard.
HEIZUNGSANLAGE
Wärmeerzeugung mit zentraler Ölheizung im Keller. Wärmeverteilung in allen Räumen mit Radiatoren.
SANITÄRANLAGEN
Sanitäre Apparate, Armaturen und Garnituren in der Nasszelle in gutem Standard. Private Waschmaschine im Hauptbad.
KÜCHENEINRICHTUNGEN
Fronten der Unter- und Oberbauten in Spanplatten mit Kunstharz belegt. Abdeckung in Granit. Küchengeräte bestehend aus Glaskeramikkochfeld mit Dampfabzug, Geschirrspüler, Kühlschrank, Backofen in gutem Standard.
Aussenbereich
Die Umgebung der Liegenschaft ist vollflächig als Parkplatz- und Verkehrsfläche gestaltet. Der Aussenbereich beschränkt sich auf den Balkon.
Eigenschaften
Umgebung
- Dorf
- Ländlich
- Berge
- See
- Geschäfte
- Einkaufsmöglichkeiten
- Bank
- Post
- Restaurant(s)
- Apotheke
- Bushaltestelle
- Autobahnanschluss
- Kindergarten
- Primarschule
- Freibad
- Golfplatz
- Tennis Zentrum
- Skigebiet
- Hallenbad
- Seilbahnen
- Langlaufloipe
- Wanderwege
- Radweg
- Museum
- Kino
- Wasserpark
- Veranstaltungsort
- Krankenhaus / Klinik
- Arzt
- Pflegeheim
Aussenbereich
- Balkon(e)
Innenbereich
- Ohne Lift
- Offene Küche
- Vorratskammer
- Keller
- Einbauschrank
- Doppelverglasung
- Hell
- Natürliches Licht
- Traditionelle Massivbauweise
Ausstattung
- Möblierte Küche
- Glaskeramik
- Backofen
- Kühlschrank
- Geschirrspüler
- Waschmaschine
- Gemeinschaftswaschküche
- Dusche
- Badewanne
- Telefon
- Kabelfernsehen
- Internetanschluss
- Gegensprechanlage
- Elektronisches Türschloss
- Hauswart
Boden
- Fliesen
- Laminat
Zustand
- Gut
Ausrichtung
- Norden
- Süden
- Westen
Besonnung
- Gut
Distanzen
Bahnhof
2.03 km
29'
7'
6'
Öffentliche Verkehrsmittel
17 m
-
-
-
Kindergarten
223 m
4'
4'
2'
Primarschule
77 m
2'
2'
2'
Geschäfte
147 m
3'
3'
2'
Post
91 m
2'
2'
1'
Restaurants
102 m
2'
2'
2'



















